
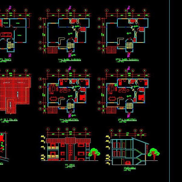
دانلود نقشه ویلایی دوبلکس با طبقه زیر زمین
جهت نمونه ... ادامه مطلب
مهندس رضا امیری، مدیرعامل گروه مهندسین ویلا بساز، با بیش از یک دهه تجربه در طراحی و اجرای تخصصی ویلا در مناطق مختلف کشور، از جمله تهران، شمال و لواسان، شناخته شده بهعنوان یکی از چهرههای موفق در حوزه ویلاسازی مدرن و لوکس است. ایشان با تکیه بر تیمی حرفهای، متریال باکیفیت و رویکردی نوآورانه، پروژهها را با دقت، سرعت و رضایت کامل کارفرما به سرانجام میرساند.






